2_cottageA.jpg
4_cottageA.jpg
5_cottageA.jpg
plan d'implantation.jpg
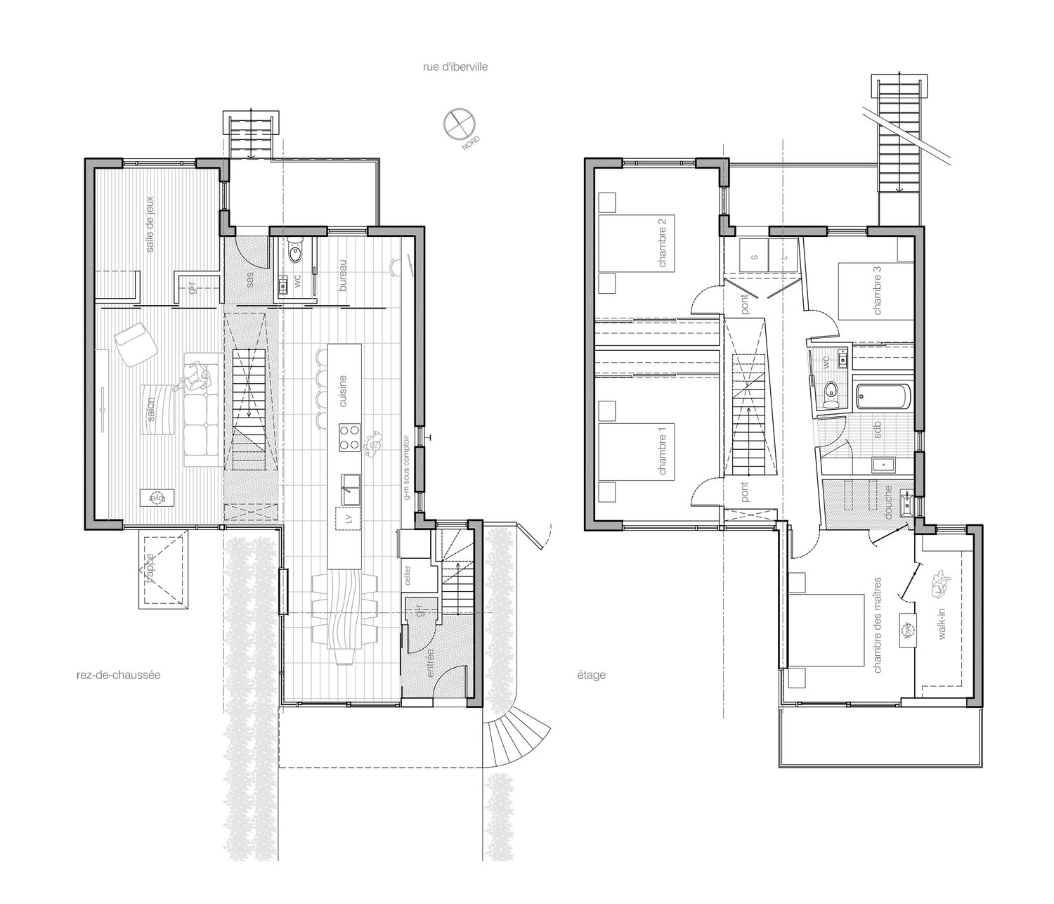
plans.jpg
existant.jpg
prev / next